Custom Home • Design

Introducing The Brighton 41!

Introducing The Brighton 41!

Icon Homes is proud to present our latest design, The Brighton 41

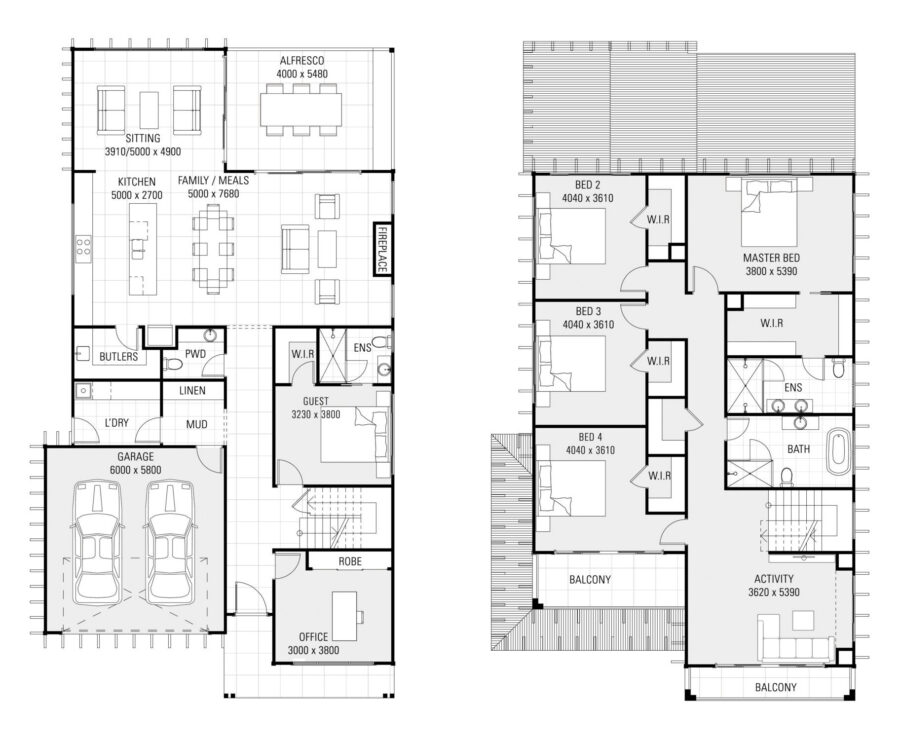
Living up to its name, The Brighton 41 is all about light open spaces. Featuring two front balconies, a sitting room with an impressive raked ceiling and the ultimate in open plan living, it will be hard to choose where you want to soak up the sun. This design is perfect for those who are searching for that fresh seaside feeling.

Speak with one of our experts today to learn more about this quintessential coastal home. Every one of our plans are customisable, and we’d love to see what visions you have for your Brighton 41 dream home.

Introducing The Brighton 41!

ABOUT THE BRIGHTON 41

A great proportioned home that can fit or be easily modified to suit most blocks. The ground floor of the Brighton offers a home office that includes a built in robe that allows this room to also double as spare bedroom. Next you will find a generous sized guest bedroom equipped with a walk in robe and full ensuite. Tucked away behind the double garage there is a mud room and laundry with a separate powder room for visitors. At the end of the hallway, the home unfolds to the spacious living and kitchen area that contains a full butler’s pantry and feature fireplace. Both the living and sitting areas have sliding stacker doors that open out to the alfresco, making this home an ideal place for family gatherings and entertaining.

Introducing The Brighton 41!

Upstairs features three well sized bedrooms each with their own walk in robes and the fourth bedroom with it’s own private front balcony. Along with a shared bathroom, walk in linen cupboard and a generous sized activity room with balcony, allowing for plenty of space for the whole family to enjoy.

For the parents, we have designed the perfect master bedroom to the rear of the home. Showcasing a luxury sized walk in robe that leads into the ensuite, which comes fully fitted with a double vanity and even twin shower heads.

Here at Icon Homes, our experienced custom builders know how important it is to have the perfect family home. We have designed the Brighton 41 to be functional with plenty of room for even the largest of families but with a few special details that we know you won’t want to be without.

It’s easy to see why so many families choose to build their forever homes with Icon Homes. If you think the Brighton 41 is the home of your dreams, we’d love to make it a reality. Contact us today to discuss plans, ask questions, or book in your free site assessment.

Adam Crawford

With over 15 years of experience in the construction industry, Adam Crawford is a Director of Icon Homes, a boutique home builder based on Sydney’s Northern Beaches. Since founding the company in 2011, he has led the delivery of custom residential projects, overseeing every stage from planning through to completion. His background in construction and project management supports a practical, detail-driven approach to building, while his strengths in contract management, negotiation and leadership help ensure projects run smoothly. Known for his hands-on involvement and commitment to quality, Adam works closely with clients to bring tailored home designs to life.
Call Now Contact Us
Loading...